LCC

IL PROGETTO

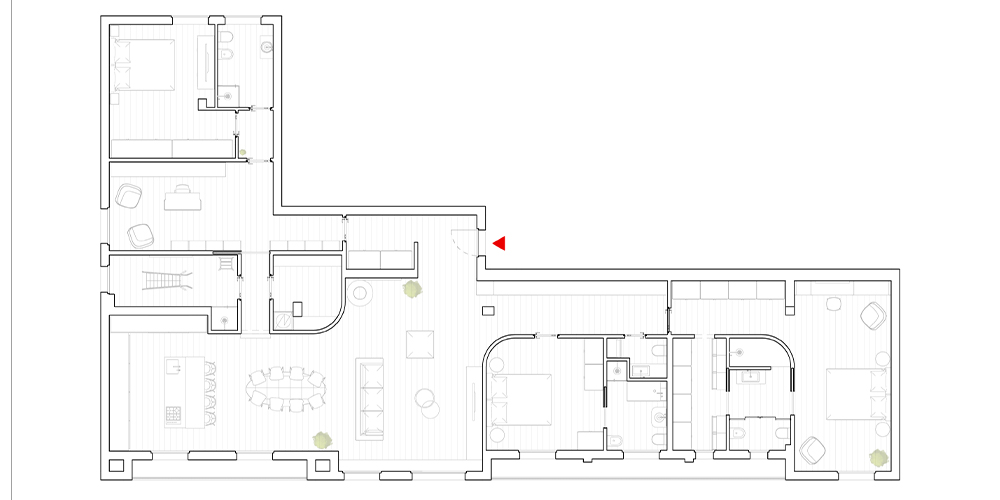
Due appartamenti distinti si fondono in un’unica abitazione, dando vita a uno spazio nuovo, più ampio e coerente, pensato per un modo di abitare contemporaneo e fluido. Il progetto nasce dall’idea di unire, semplificare e armonizzare, trasformando la separazione in continuità.

La nuova configurazione ridisegna completamente gli ambienti interni: la zona giorno si amplia e diventa il fulcro della casa, mentre le aree notte trovano un equilibrio più funzionale grazie a spazi di ingresso e disimpegno che organizzano i percorsi in modo naturale. L’unione dei due alloggi permette di ottenere ambienti più generosi e luminosi, capaci di dialogare tra loro con maggiore libertà.

Anche i bagni vengono ripensati per offrire maggiore comfort: uno si amplia, un altro prende forma, contribuendo a rendere l’abitazione più adatta alle esigenze quotidiane. Finiture, serramenti e dotazioni vengono rinnovati per restituire un’immagine omogenea e contemporanea, migliorando al tempo stesso qualità e prestazioni degli spazi.

L’intervento si concentra esclusivamente sugli interni, mantenendo invariata l’identità esterna dell’edificio. Il risultato è una casa completamente trasformata nella percezione e nell’esperienza, pur restando fedele al contesto in cui si inserisce.

INFORMAZIONI
Committente

Privato

Stato

Completato

Luogo

Lecco

Anno

2024

Tipologia

Appartamento

Superficie

220 m2

Design Team

Nost Architetti: Progetto Architettonico, Direzione Lavori

Cantiere

Realizziamo insieme il
tuo progetto

Grazie al supporto dei nostri architetti sarai seguito passo dopo passo nella realizzazione del tuo progetto. Chiama ora o invia una mail e un membro del nostro staff ti risponderà al più presto!

CONTATTACI

LAVORA CON NOI

Per un futuro migliore di migliaia di persone nel mondo