
Villa Magnolia
Il progetto di ristrutturazione e ampliamento di una residenza privata di inizio ‘900 nelle vicinanze del centro storico di Maslianico unisce passato e futuro conservando allo stesso tempo la bellezza e i valori storici dell’edificio.
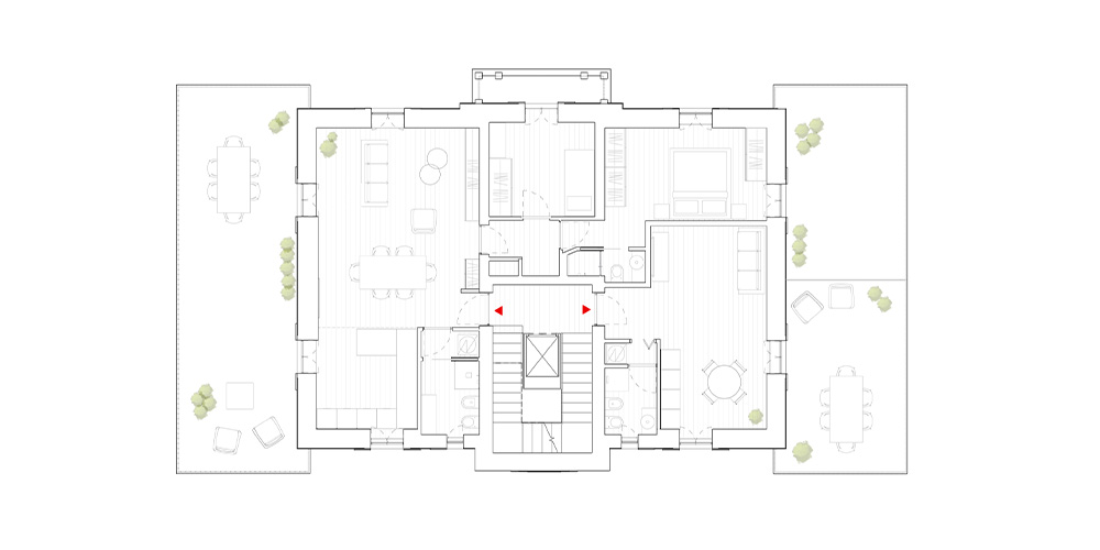
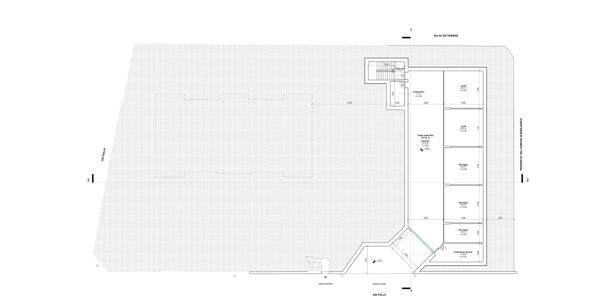
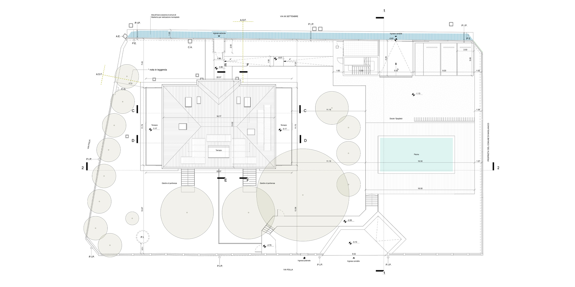
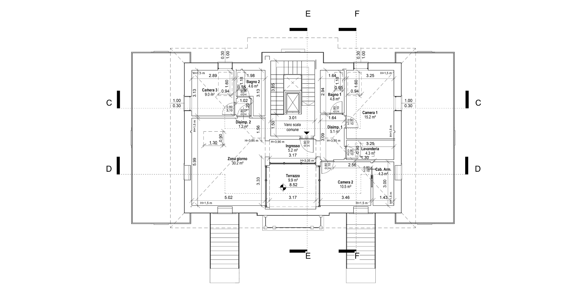
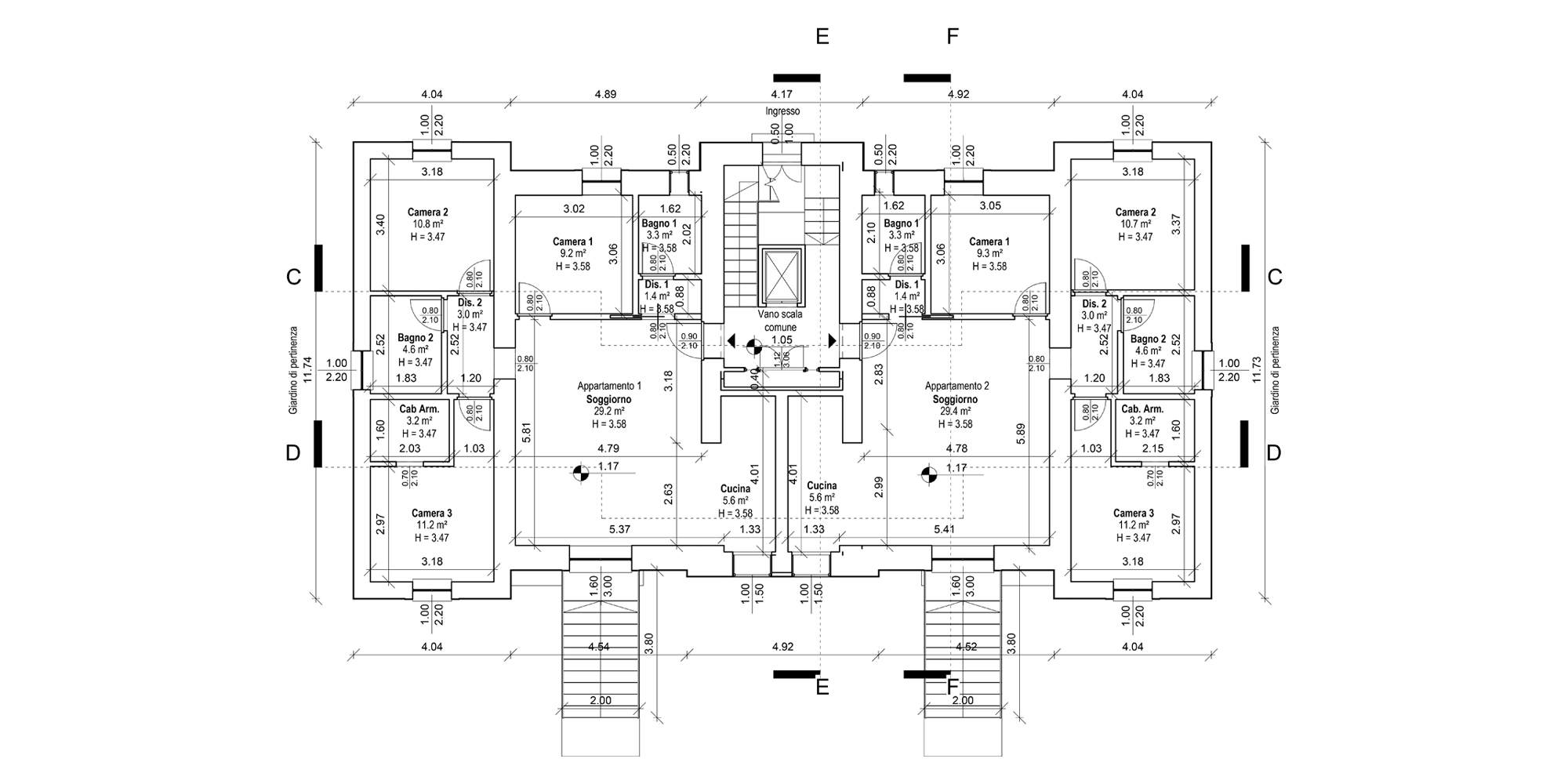
È stato realizzato un ampliamento sui lati dell’edificio che dialoga con la villa esistente non alterandone i caratteri. L’ampliamento consente di dare spazio alle zone notte degli appartamenti situati al piano terra e agli ampi terrazzi del primo piano che dialogano con il giardino che circonda la villa. All’interno lo spazio della villa si riorganizza in cinque appartamenti che si sviluppano su tre piani. Vi sono due appartamenti al piano terra che godono di un accesso sul prospetto posteriore al giardino privato e due appartamenti bilocali al primo piano, che sfruttano la grande terrazza. Il terzo piano è dedicato a un unico ampio appartamento.
Privato
Completato
Maslianico (CO)
2024
Villa storica
180 m2
Nost Architetti: Progetto Architettonico, Direzione Lavori
Cantiere
Realizziamo insieme il
tuo progetto
Grazie al supporto dei nostri architetti sarai seguito passo dopo passo nella realizzazione del tuo progetto. Chiama ora o invia una mail e un membro del nostro staff ti risponderà al più presto!




















